75 АС-065 Торий
75 АС 065
Одна из вариации АС на базе клонируемого оригинала OТТО SX-P1 (Fisher 1200).
Выпускал их НПО «Торий». В восьмидесятых годах прошлого века.

Нами написана обобщающая аналитическая статья: OТТО SX-P1 (Fisher 1200) и их клоны в СССР.
Всего НПО «Торий» выпустил 4-6 (как считать) вариации АС.
Видоизменялись размеры и форма ящиков акустических систем. Незначительно менялись фильтры.
Другие модели:
- 50 АС-061м
- 100 АС-060
- 100 АС-063
Металлические диффузоры во всех трех головках.
НЧдинамик ГД-01-25
ГД-01-25
Диапазон частот: 31,5 – 1000 Гц
Уровень характеристической чувствительности: 86,5 дБ
Номинальное сопротивление: 7 Ом
Номинальная мощность: 75 Вт
Частота основного резонанса: 28 Гц
Полная добротность: 0,35
Индукция в зазоре: 1 Тл
Габаритные размеры: Ø320х175 мм
Масса: 5,8 кг
Корзина изготовлена методом литья под давлением. Магнитная система построена на двух ферритовых магнитах. Диффузор выполнен из вспененного никеля. Пылезащитный колпачок двойной, первый – тканевый, за ним установлен меньшего диаметра – алюминиевый. Звуковая катушка диаметром 66 мм намотана медным проводом на алюминиевом каркасе. Ширина магнитного зазора 1,5 мм. Масса подвижной системы 55-60 г, в зависимости от того, сколько эпоксидной смолы нанесено с тыльной стороны диффузора, которая крепит фольгу.
СЧдинамик ГД-01-230
ГД-01-230
Диапазон частот: 315 – 6300 Гц
Чувствительность: 88,5 дБ
Сопротивление: 7 Ом
Габаритные размеры: 170х170х140 мм
ВЧдинамик ГД-01-1000
ГД-01-1000
100 АС-060 «Электроника»

Диапазон частот: 31,5 – 25000 Гц
Чувствительность: 88 дБ
Неравномерность АЧХ звукового давления в диапазоне частот 100 – 8000 Гц относительно уровня среднего звукового давления в диапазоне 50 – 20000 Гц: ± 4 дБ
Направленность под углами к акустической оси:
в вертикальной плоскости ± 7°: ± 4 дБ
в горизонтальной плоскости ±25°: ± 4 дБ
Коэффициент гармоник в диапазоне частот:
63 – 1000 Гц (при звуковом давлении 96 дБ): 2%
1000 – 2000 Гц (при звуковом давлении 93 дБ): 1,6%
2000 – 8000 Гц (при звуковом давлении 90 дБ): 1,4%
Сопротивление: 8 Ом
Минимальное значения импеданса: 6,4 Ом
Паспортная мощность: 100 Вт
Вес: 51 кг
Размеры : 915х455х475 мм
100-АС-060-АЧХ
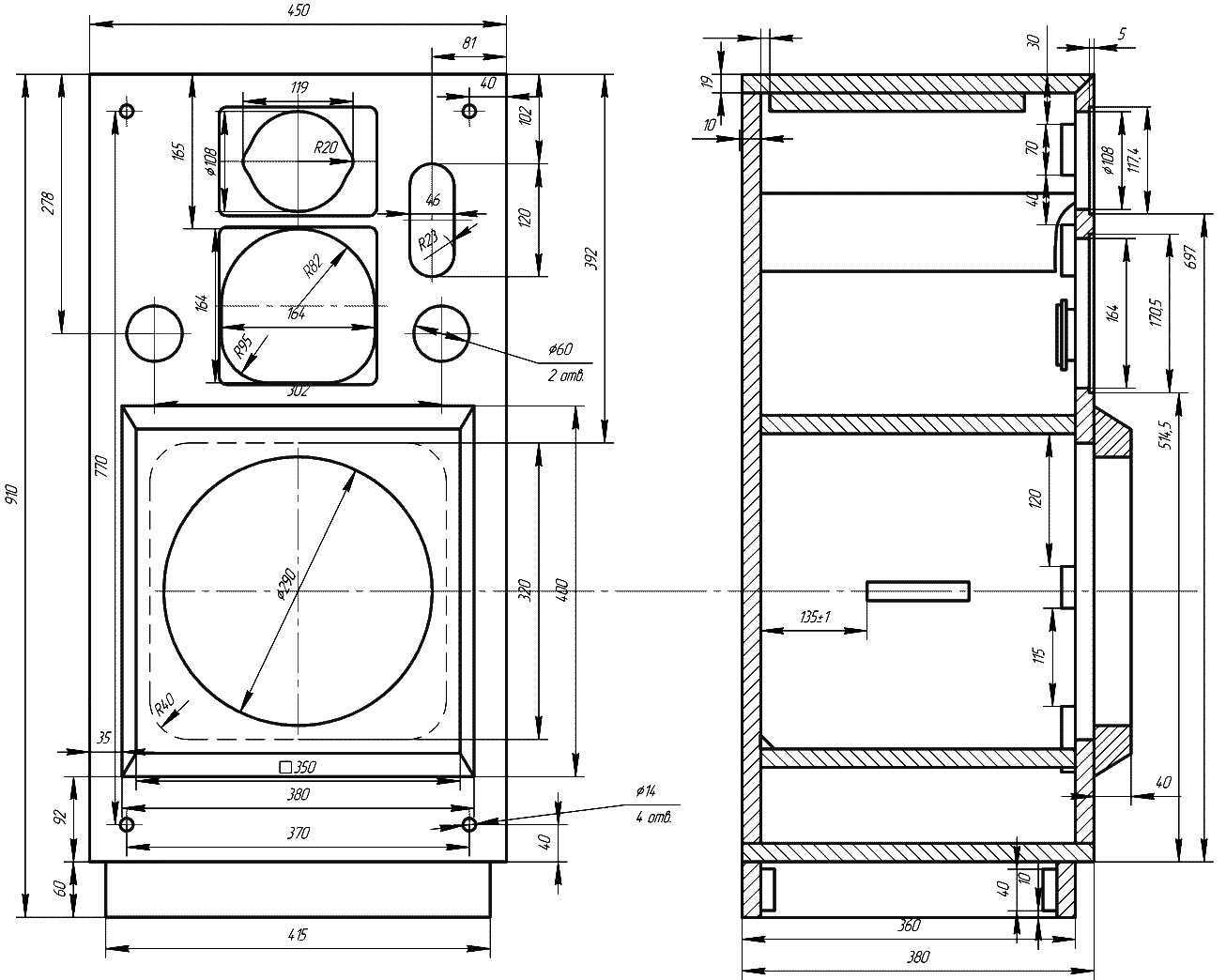
Корпус АС из древесно-стружечной плиты толщиной 19 мм. Боковые стенки шпонированы. Лицевая панель окрашена черный цвет. Лицевая панель толщиной 20 мм. В месте установки на панели НЧ головки толщина 60 мм.
Рама, делящая внутренний объем корпуса на две части, является одновременно панелью акустического сопротивления (ПАС).
100АС-060 акустика
Два отверстия фазоинвертора диаметром 57 мм и длиной 35 мм. (на частоту 45 Гц. ) Внутренний объем АС – 110 л.
Пределы регулирования уровня средних частот от -20 до 0дБ, высоких частот от -20 до +3дБ.
100-АС-060-схема

100-as-063 фильтры






























